37

︎

Surélévation d’une maison individuelle
Lieu : Suresnes
Surface créée : 20 m²
Budget : 180 000 € HT
Statut : Livré en Juin 2020
Photos : Simon Genillier
	
Lieu : Suresnes
Surface créée : 20 m²
Budget : 180 000 € HT
Statut : Livré en Juin 2020
Photos : Simon Genillier











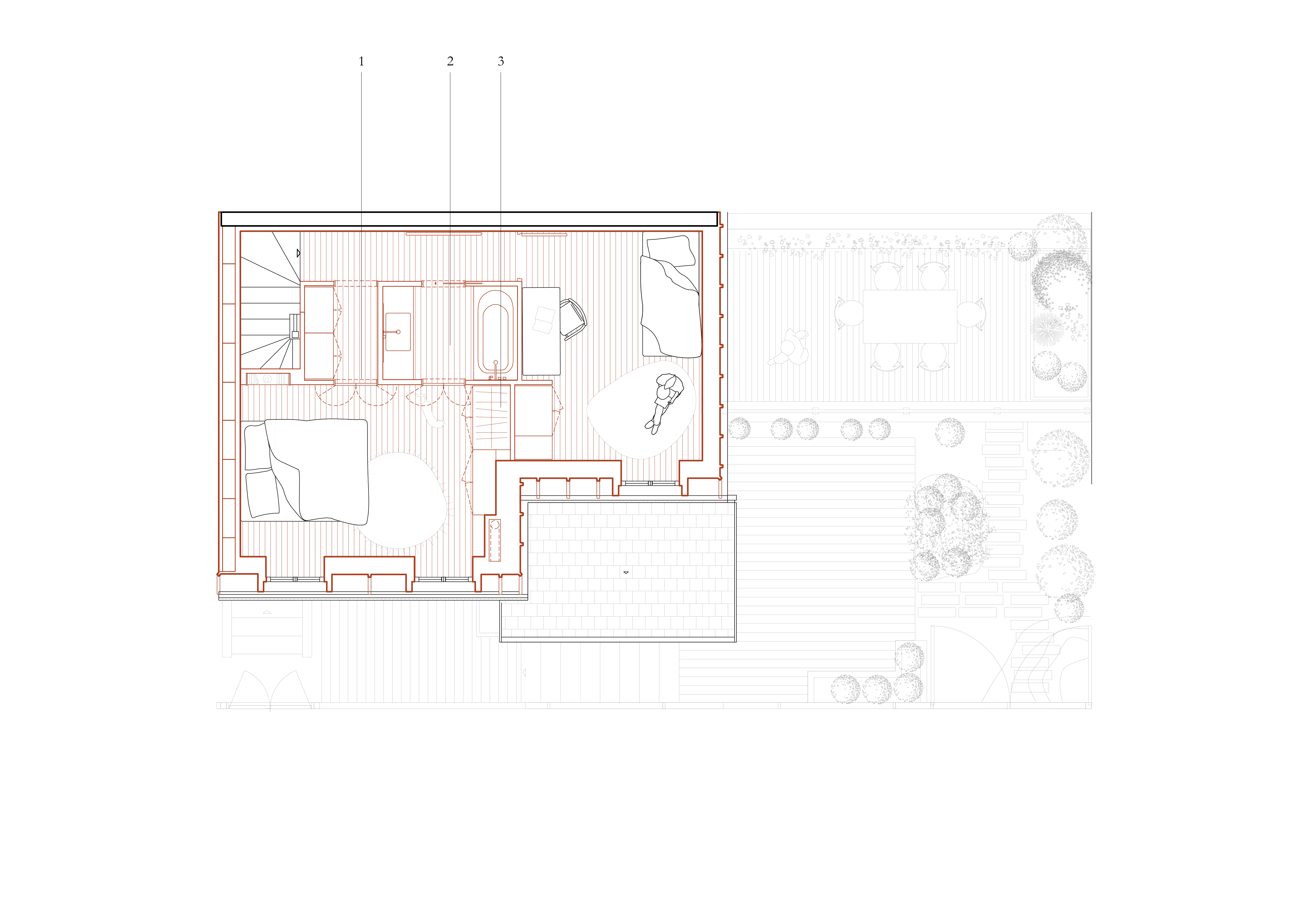
1. les deux accès vers la chambre parentale sont travaillés avec des doubles portes pour limiter l’encombrement et donner plus de verticalité à cet espace réduit dont la hauteur sous plafond est limitée à 2m10.
	2. la salle  d‘eau est traversante pour permettre  un accès depuis la chambre enfant et la chambre parentale. Une porte coulissante en verre strié permet d’éclairer le dégagement en assurant l’intimité nécéssaire à la salle d’eau. 
	3. l’ensemble du mobilier est réalisé en contreplaqué okoumé : sa résistance à l’eau permet un usage dans la salle d’eau et assure une cohérence dans la matérialité du projet.
Dans la chambre parentale, l’okoumé est habillé de tissu pour rendre le dressing plus discret.
	
Dans la chambre parentale, l’okoumé est habillé de tissu pour rendre le dressing plus discret.





