73


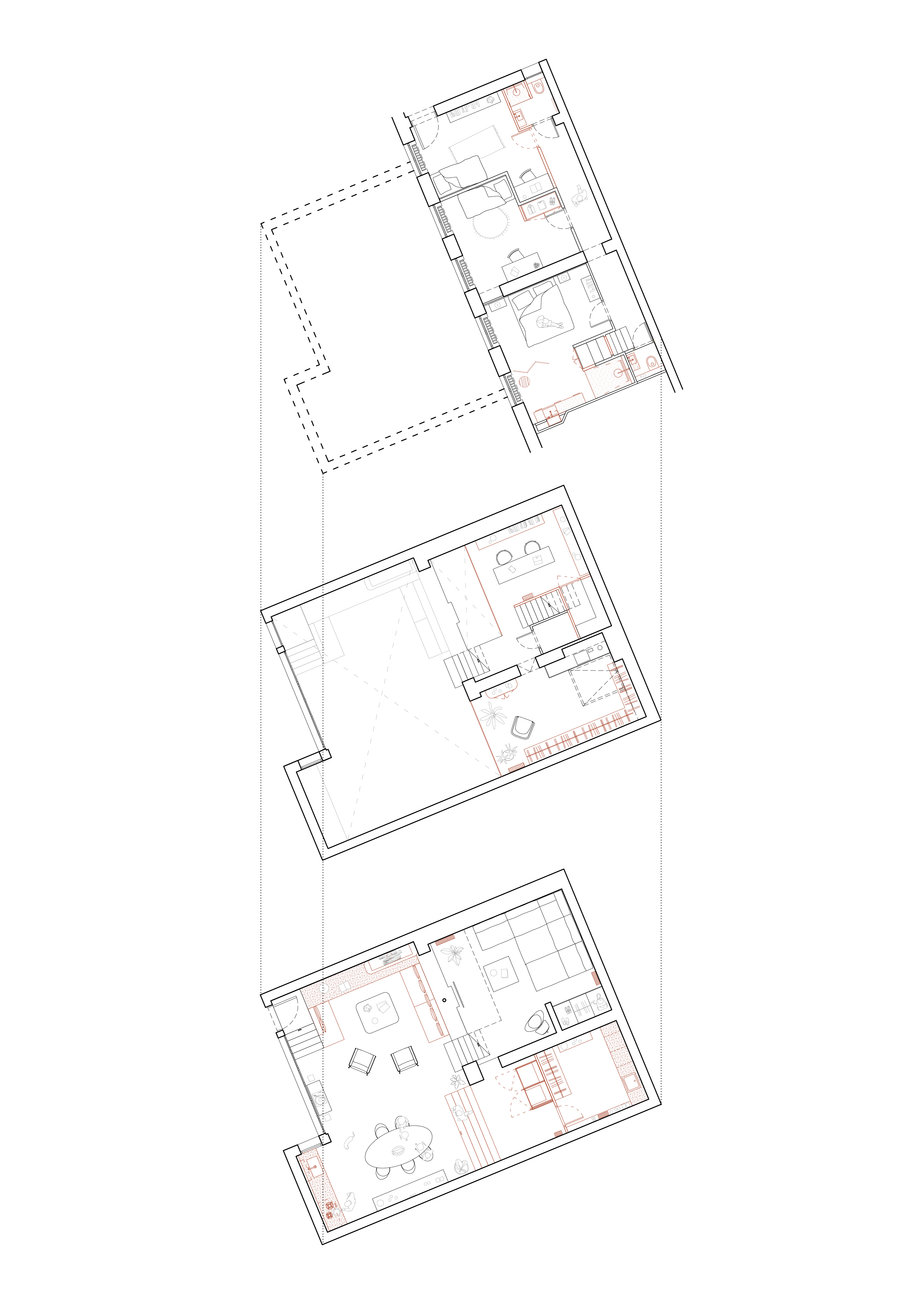
Restructuration et rénovation partielle d’un atelier en triplex
Lieu : Paris XI
Surface : 200 m²
Budget : NC
Statut : livré en Septembre 2023
Curation : Studio Cøllected
Photographe : Oracle
Lieu : Paris XI
Surface : 200 m²
Budget : NC
Statut : livré en Septembre 2023
Curation : Studio Cøllected
Photographe : Oracle





















