60
![]()

︎

Restructuration partielle et
aménagement d’une maison en fond de cour
Lieu : Paris XIX
Surface restructurée :38 m²
Budget : 145 000 € HT
Statut : Livré en Juin 2022
Photos : Irvin Heller
Lieu : Paris XIX
Surface restructurée :38 m²
Budget : 145 000 € HT
Statut : Livré en Juin 2022
Photos : Irvin Heller



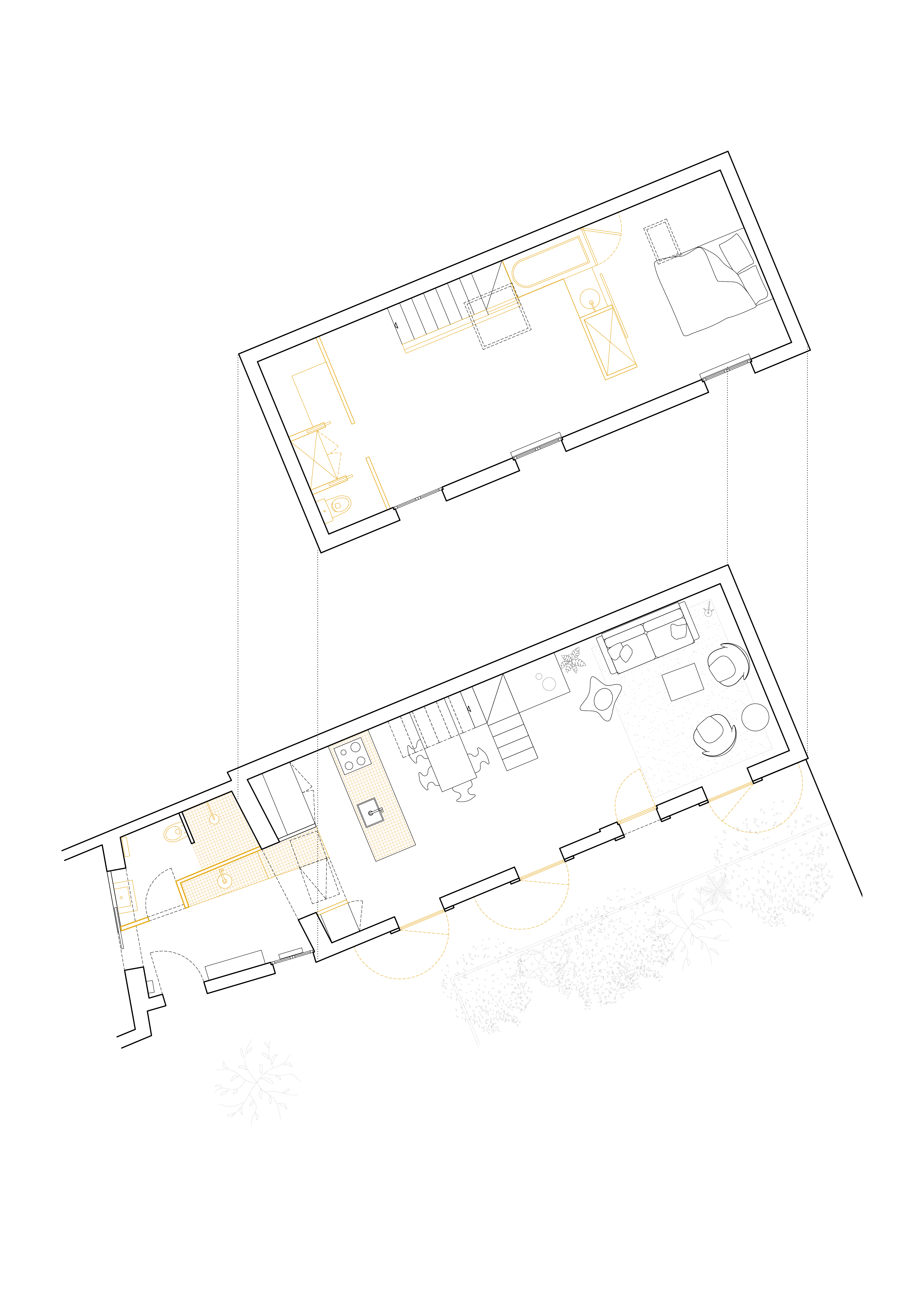
1. la maison située en fond de cour donne sur un jardin en coeur d’ilôt isolé de la rue par un immeuble de cinq étages lui donnant accès.
2. la façade est totalement ravalée et des menuiseries en acier sur mesure sont installées. Leur finition, thermolaquée dans un coloris brun tirant sur le rouille,s’harmonise avec la végétation du jardin.
3. les deux portes fenêtres existantes sont réunies pour ouvrir largement le séjour sur le jardin. L’ouverture à l’anglaise libére l’aménagement intérieur et accentue l’effet de continuité entre le dedans et le dehors.
2. la façade est totalement ravalée et des menuiseries en acier sur mesure sont installées. Leur finition, thermolaquée dans un coloris brun tirant sur le rouille,s’harmonise avec la végétation du jardin.
3. les deux portes fenêtres existantes sont réunies pour ouvrir largement le séjour sur le jardin. L’ouverture à l’anglaise libére l’aménagement intérieur et accentue l’effet de continuité entre le dedans et le dehors.
4. l’étage est repensé pour répondre aux besoins des trois propriétaires : l’espace central est dédié au dressing, avec la construction d’un ilot massif en acier noir autour duquel vont s’articuler les différents espaces.
5. un sas fait office de buanderie et de vestiaire avant l’accès à la salle de bain. Bancs en bois et patères murales reprennent les codes des vestiaires sportifs.
6. dans la salle de bain, l’esprit est au béton avec un bain japonais et une vasque coulées sur mesure.
5. un sas fait office de buanderie et de vestiaire avant l’accès à la salle de bain. Bancs en bois et patères murales reprennent les codes des vestiaires sportifs.
6. dans la salle de bain, l’esprit est au béton avec un bain japonais et une vasque coulées sur mesure.
7.une paroi fixe vitrée ouvre les perspectives depuis la salle de bain vers le reste de l’étage. Dans ce cadrage vertical étirant la faible hauteur sous plafond, un verre armé preserve l’intimité.
8. Une bibliothèque filant à travers les pièces habille le mur du dressing et se poursuit dans la chambre. Une fente vitrée dans la cloison sépare ces deux espaces tout en conservant une continuité visuelle.
9. encadrée de miroirs, la fenêtre du dressing démultiplie les vues sur la végétation du jardin et les apports de lumière.
8. Une bibliothèque filant à travers les pièces habille le mur du dressing et se poursuit dans la chambre. Une fente vitrée dans la cloison sépare ces deux espaces tout en conservant une continuité visuelle.
9. encadrée de miroirs, la fenêtre du dressing démultiplie les vues sur la végétation du jardin et les apports de lumière.










